Chico

Bed Icon
4
Soverom
Size Icon
102,6
m2

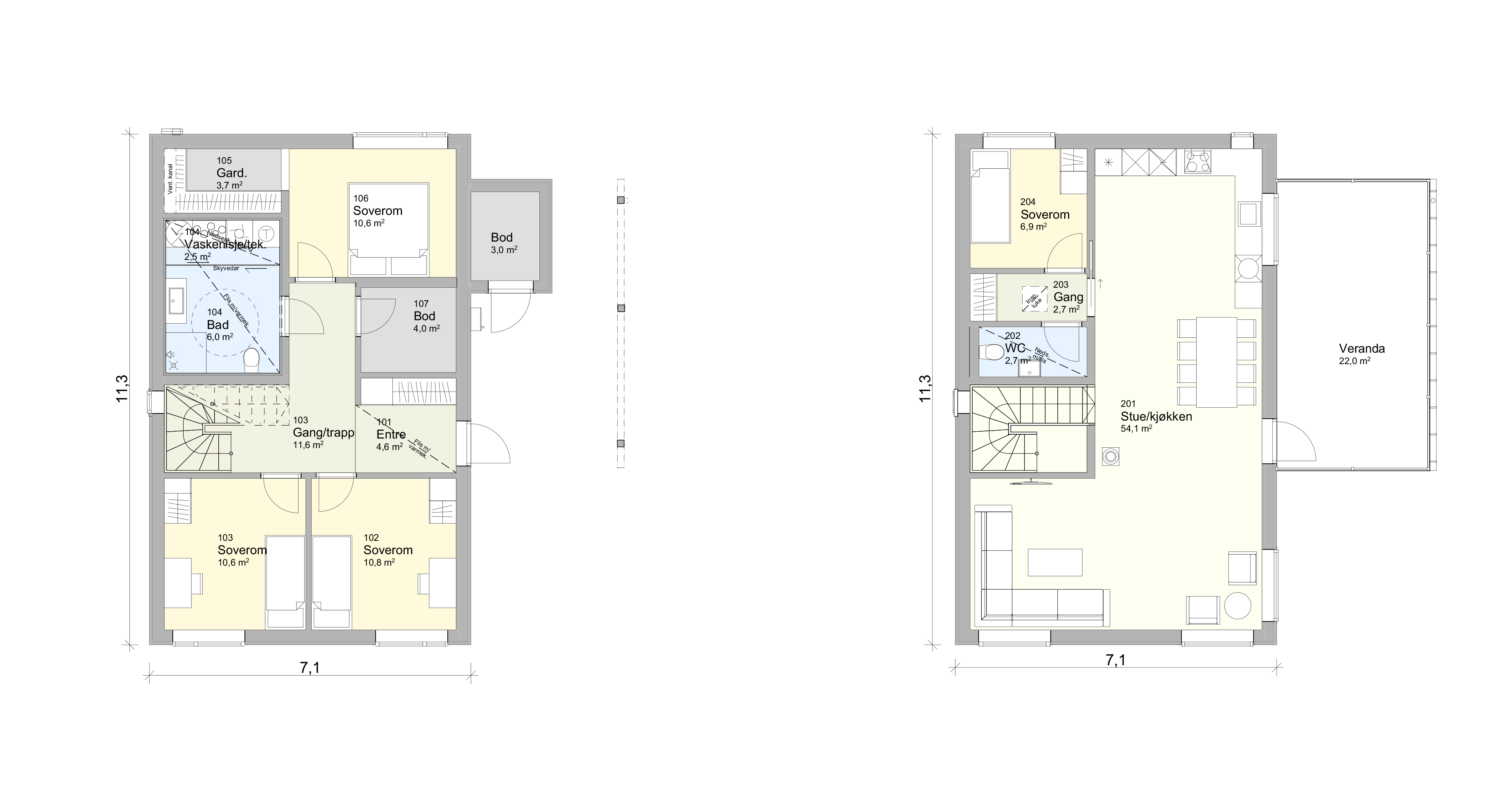
Moderne og stilig enebolig over to plan, med rene linjer og god utnyttelse.

Denne modellen har alt en liten familie måtte trenge. Planløsningen er praktisk

og arealeffektiv og sørger for private og sosiale soner.

Saltak gir boligen et tradisjonelt og gjenkjennelig uttrykk.

Detaljer
Bruksareal (BRA)

141,3

m2
Bebygd areal (BYA)

102,6

m2
Soverom

4

*Leveres nøkkelferdig med betong.
Hvordan vi jobber

Byggeprosess

1
Rådgiving
2
Valg av hus
3
Byggesøknad
4
Bygging
5
Overtakelse