Frida

Bed Icon
4-5
Soverom
Size Icon
119,7
m2

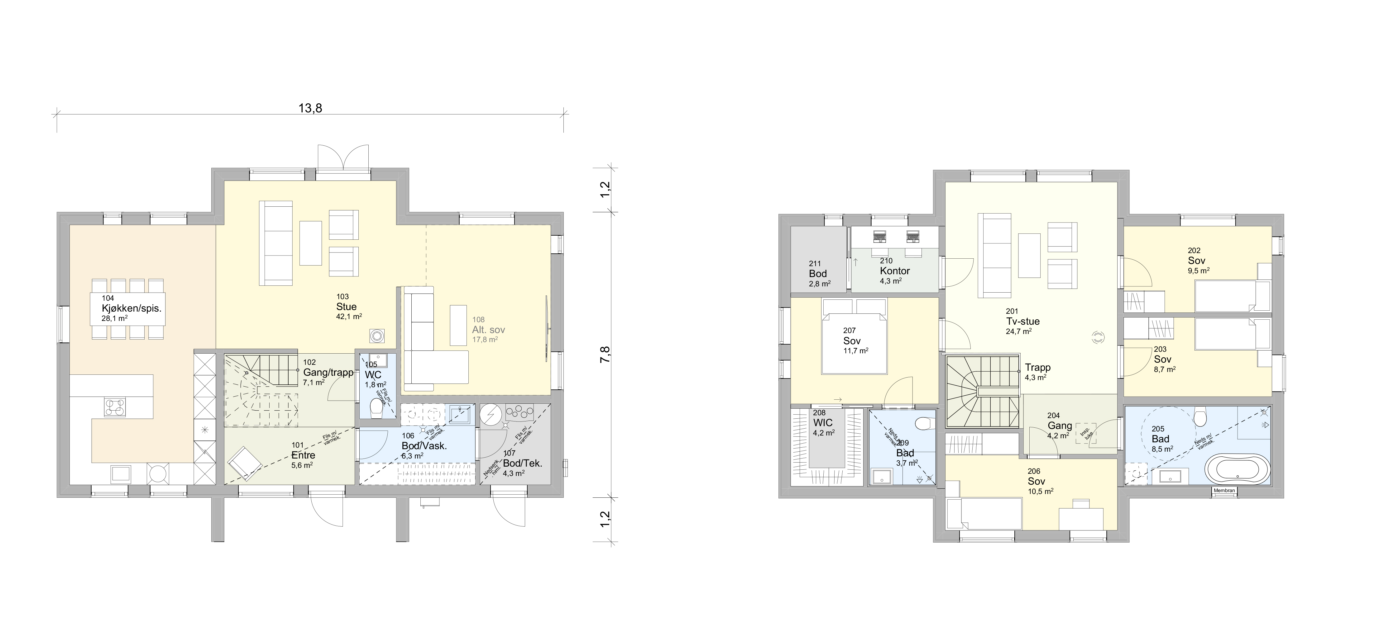
Denne romslige modellen har alt du trenger - og litt til. Et stort hus over to etasjer

med mulighet for et ekstra soverom i 1. etasje. Her er det stor boltreplass

for en stor familie, med praktiske løsninger. Huset med pulttak har et stilig og

tidløst uttrykk.

Detaljer
Bruksareal (BRA)

201,8

m2
Bebygd areal (BYA)

119,7

m2
Soverom

4-5

*Leveres nøkkelferdig med betong.
Hvordan vi jobber

Byggeprosess

1
Rådgiving
2
Valg av hus
3
Byggesøknad
4
Bygging
5
Overtakelse